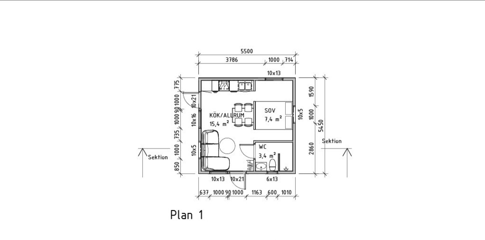
Enligt ritning så är det ett badrum, storstuga/köksdel och sovrum men det finns inga bärande väggar så planlösningen går att förändra som man vill. Husets yttermått är 5,5 X 5,5 meter (cirka 30 kvm).
Detta ex säljs med färdigspikad, grundmålad panel samt smyg och foder i alla dörr och fönsterhål.
.
4 st väggblock inkl panel
2 st gavelspetsar
4st takstolar
Ritning för bygganmälan
Väggens konstruktion utifrån och in:
Liggande 22 X 145 grundmålad zätapanel
22X45 luftningsläkt
Vindduk
Stående stomregel 45X120 mm
Fönster och dörrar ingår ej.













