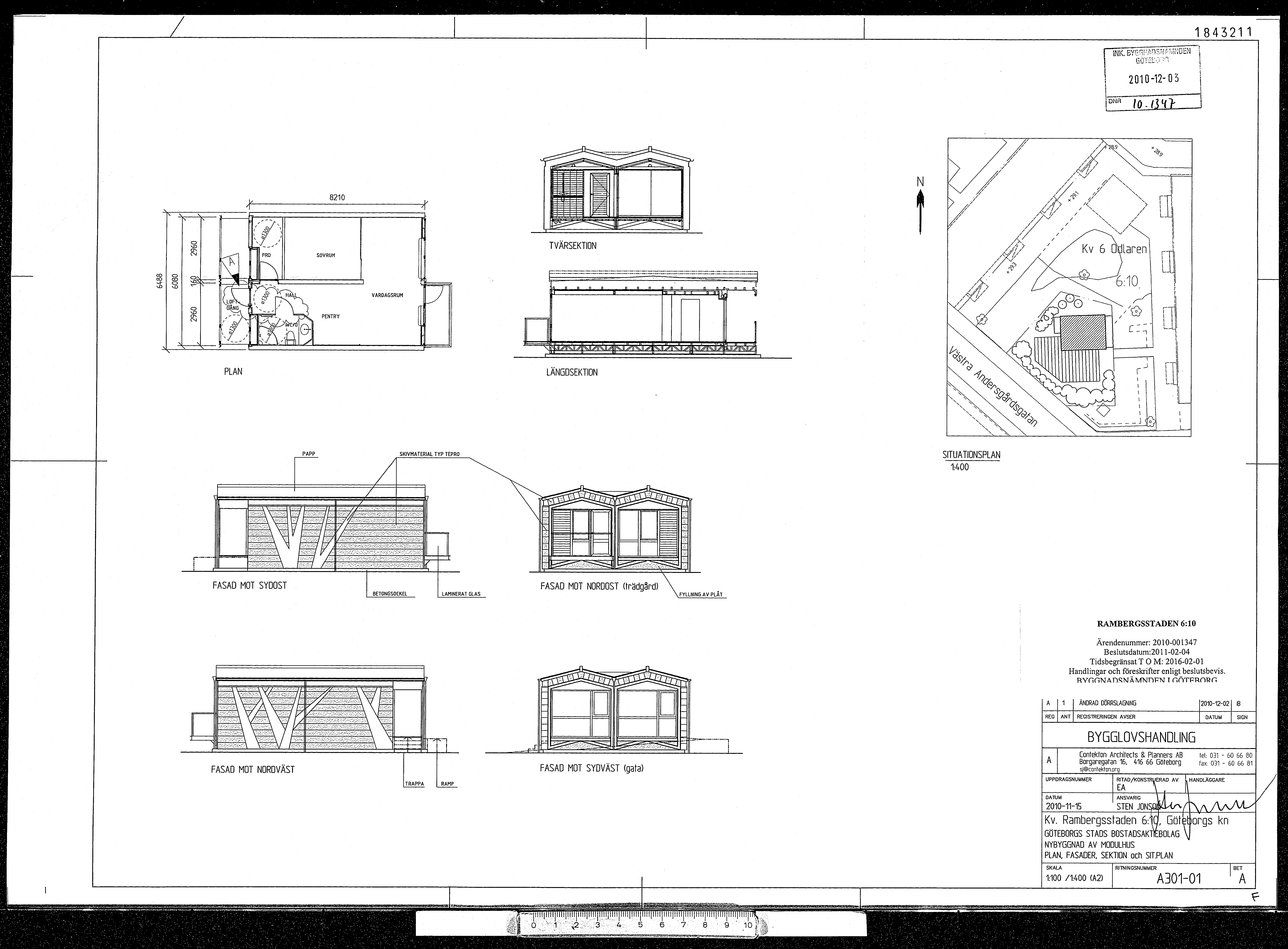
Modulhus för demontering 1st Lägenhet.
Monteringsår: 2011
Adress: Västra Andersgårdsgatan 11, 417 15 Göteborg.
1st Lägenhet byggd av 2st moduler. Entréaltan med ramp ingår. Tak, stuprör, inredning, vitvaror m.m ingår i objektet.
Se bifogade ritningar samt materialinventering längst ner.
Köparen ansvarar för demontering och bortforsling av modulerna, säljaren ansvarar för återställning av marken. OBS! Betongfundament ingår ej och måste stå kvar.
Demontering kan påbörjas efter avslutad auktion och full betalning inkommit och måste vara klart senast 6/9/2024.
Om detta inte sker bortforslas objektet på köparens bekostnad.
Materialinventering 2024-04-14 Ritning 1 Ritning 2 Ritning 3




























































































