Rejäl stomme byggd enligt svensk byggnorm.
Huset levereras utan panel påspikad (ingår ej) vilket gör att kunden själv kan bestämma vilken typ av panel han vill ha och om den ska vara liggande eller stående. Det går också bra att välja att putsa huset om man så vill.
Fönster och dörrar ingår ej.
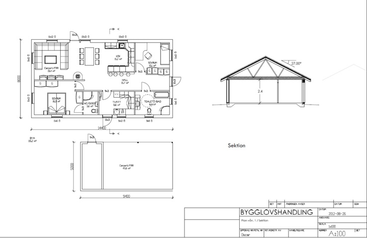
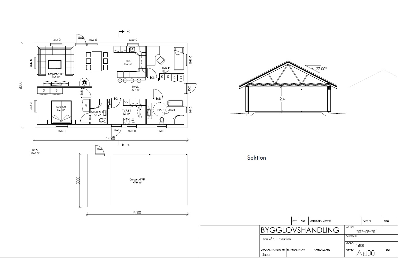
Husets yttermått är 8,0*14,4 meter.
Stommens konstruktion utifrån och in:
Spikläkt 12X50
Vindduk
Stomregel 45X195 mm
Följande ingår:
Väggblock (6 st)
Gavelspetsar (2 st)
Takstolar
Bygglovshandlingar (plan och fasad)
Allt packat i paket täckta med lättviktspress.
Observera att detta är nytillverkade bodar som tidigast kan hämtas tre veckor efter auktionsavslut.
Bodarna levereras alltid omålade men grundmålad fasad kan beställas till om så önskas.
Önskas frakt ta kontakt med säljare.
Stommarna finns ej färdiga utan byggs efter vunnen auktion. Detta för att du som kund skall få möjlighet att eventuellt ändra eller kunna lägga till eventuella tillbehör. Observera även att produktbilder endast är exmpel på hur det kan se ut färdigbyggt.











